MULTIFORM
National Theater of Latvia

TYPE: Competition
CLIENT: National Theater of Latvia
COLLABORATORS: -
SIZE: 16127 m2
LOCATION: Riga, Latvia
YEAR: 2019
STATUS: Idea
PARTNERS IN CHARGE: Alisher Sadykov
PROJECT LEADER: Evgeny Spicyn
PROJECT ARCHITECT: Alisher Sadykov
TEAM: Diana Nikitina, Arta Lace, Alisher Sadykov, Sana Vong, Kristaps Eichler, Sergejs Surpickis

DESCRIPTION:

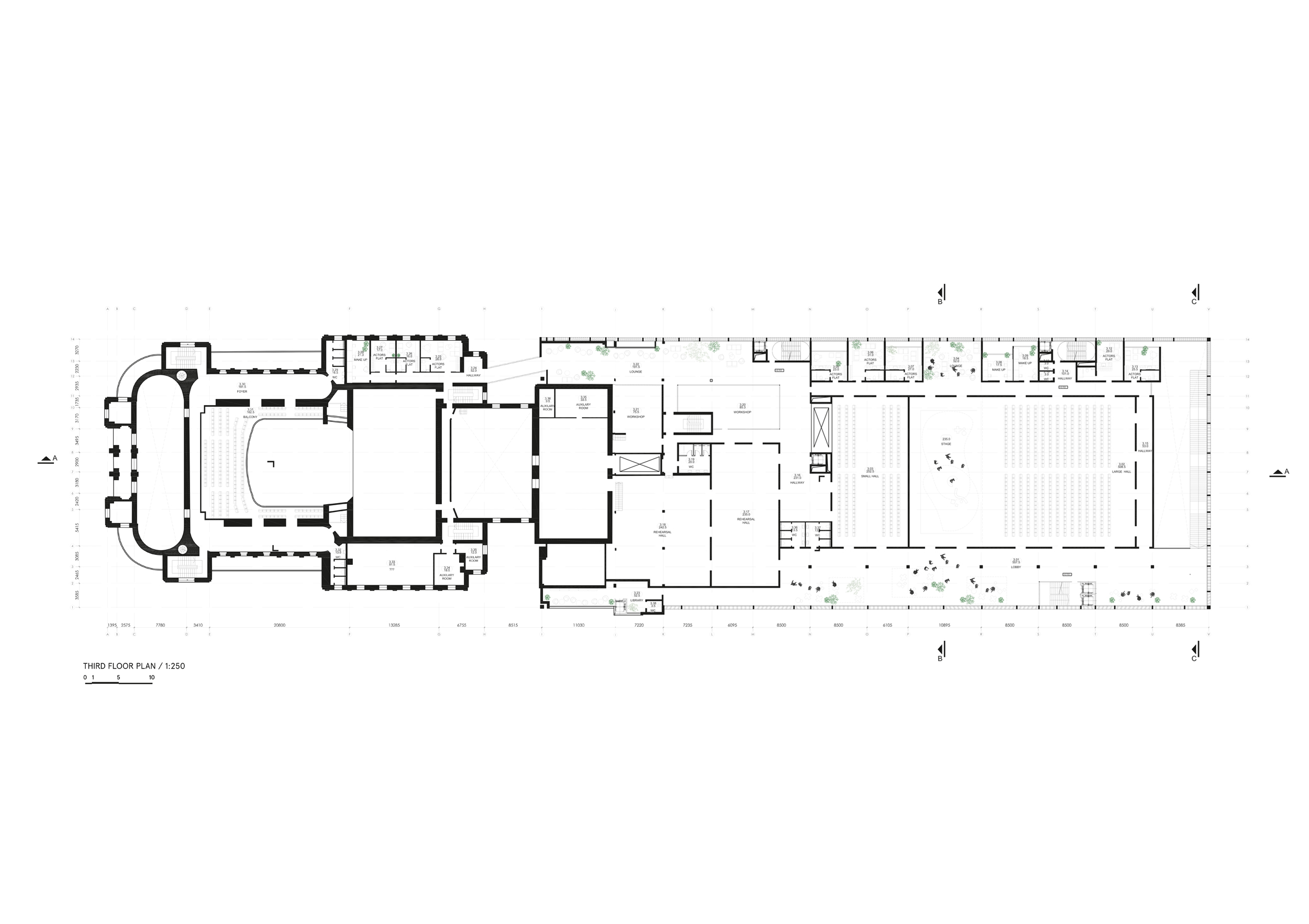
Latvian National theatre is not only a performing arts house but also one of the most important buildings in Latvians history. Built in time of Russian empire to host drama and romance it was also a place of inception of idea about independent country of Latvia. To create an extension for such iconic building is about to shift city landscape and implement contemporary theatre solutions, but also to add changes to emotional picture of the Latvian national self-esteem.